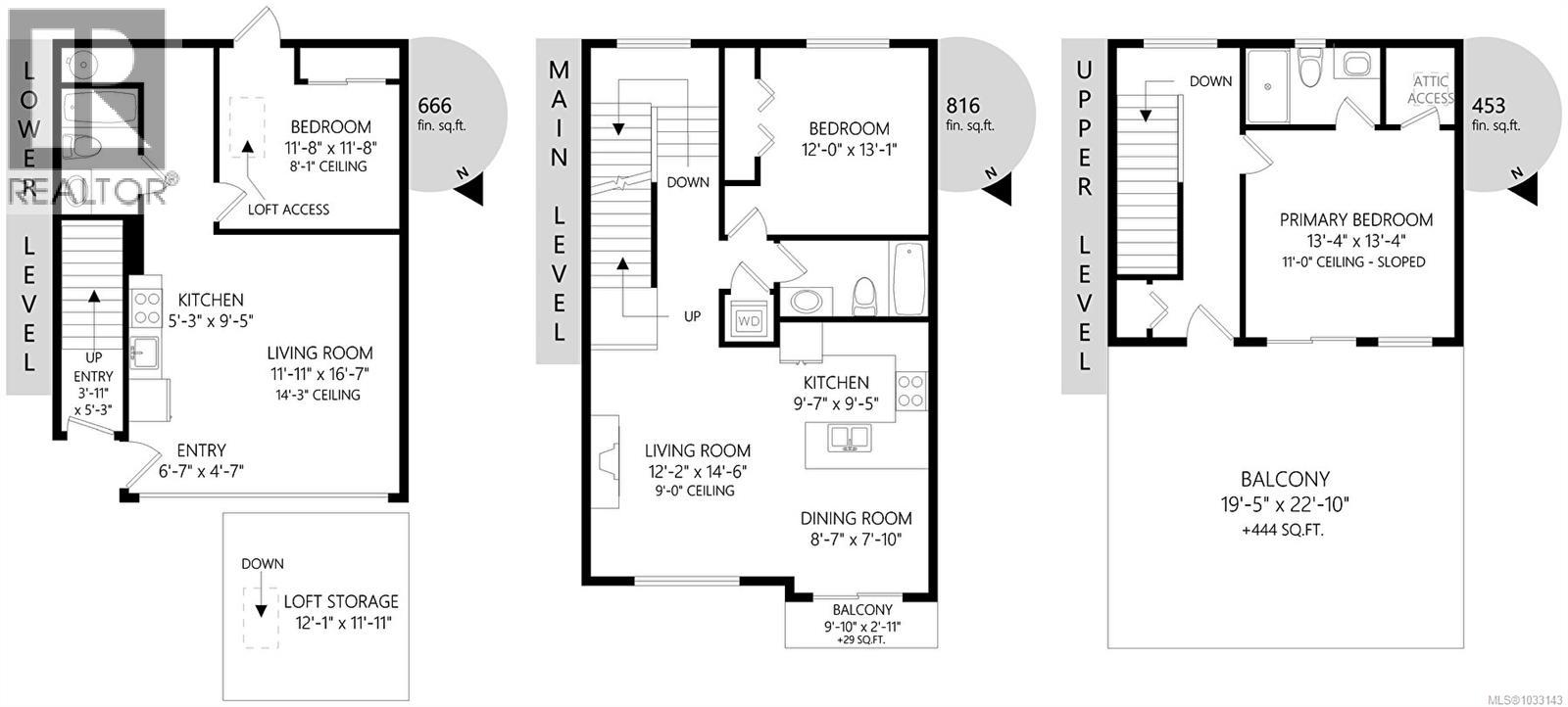
This beautifully designed 3-bedroom, 3-bathroom end-unit townhome offers a versatile layout perfect for multi-generational living, adult children, or a home-based business (RM7A zoning). A standout feature is the over-height garage that has been professionally converted into additional living space, complete with its own separate entrance, wet bar, living area, full bathroom, bedroom, and a mezzanine for extra storage—ideal for guests, extended family, or workspace flexibility. The main level showcases a bright, open-concept design with a modern kitchen featuring ample cabinetry, a spacious dining area with access to a BBQ deck, and a cozy living room with a gas fireplace. This level also includes laundry and a second bedroom for added convenience. Upstairs, the private primary retreat offers vaulted ceilings, a walk-in closet, a 3-piece ensuite, and access to a large, sunny outdoor deck—perfect for relaxing. Steps away from Florence Lake this home represents exceptional value! (id:24212)
Active
1437 Dolomite Ridge, Langford
$819,999MLS® 1017265
4 Beds
3 Baths
1822 SqFt


