Login   Sign Up
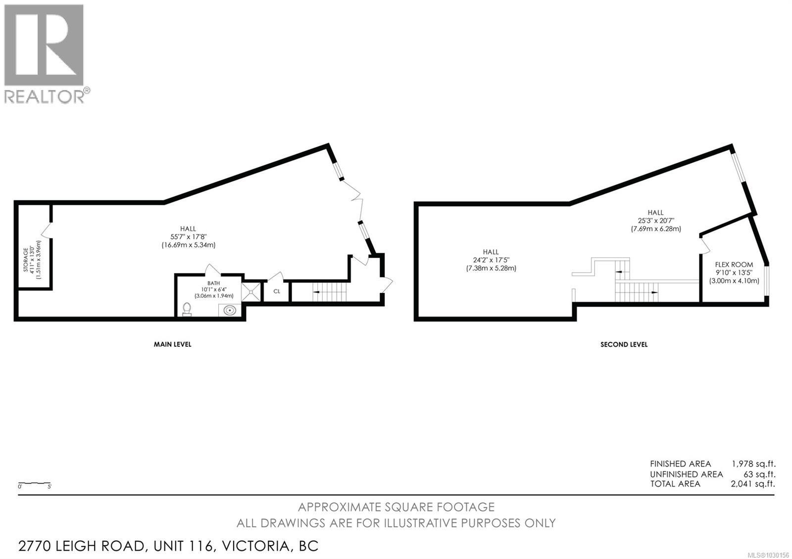
Fantastic opportunity to purchase a strata unit at 2770 Leigh Road. This unit features 2,041 sf split between two levels with the main floor used as a workshop/storage with a bay door, bathroom, and secure storage in the rear. Upstairs has a large open conference area, currently used as a training room with a office. BT1 zoning allows for a range of uses including but not limited to fitness centre, light industrial, medical clinics, and education facility. (id:24212)
Price:
$ 800,000
MLS Number:
1030156

Property Specifications

Interior Features

Building Features

Floors

Land

Neighbourhood Features

Ratings

Commercial Info

Location

Mortgage Calculator

powered by Ratehub.ca

Neighbourhood Details

The trademarks MLS®, Multiple Listing Service® and the associated logos are owned by The Canadian Real Estate Association (CREA) and identify the quality of services provided by real estate professionals who are members of CREA” MLS®, REALTOR®, and the associated logos are trademarks of The Canadian Real Estate Association. This website is operated by a brokerage or salesperson who is a member of The Canadian Real Estate Association. The information contained on this site is based in whole or in part on information that is provided by members of The Canadian Real Estate Association, who are responsible for its accuracy. CREA reproduces and distributes this information as a service for its members and assumes no responsibility for its accuracy The listing content on this website is protected by copyright and other laws, and is intended solely for the private, non-commercial use by individuals. Any other reproduction, distribution or use of the content, in whole or in part, is specifically forbidden. The prohibited uses include commercial use, “screen scraping”, “database scraping”, and any other activity intended to collect, store, reorganize or manipulate data on the pages produced by or displayed on this website.

Multiple Listing Service (MLS) trademark® The MLS® mark and associated logos identify professional services rendered by REALTOR® members of CREA to effect the purchase, sale and lease of real estate as part of a cooperative selling system. ©2017 The Canadian Real Estate Association. All rights reserved. The trademarks REALTOR®, REALTORS® and the REALTOR® logo are controlled by CREA and identify real estate professionals who are members of CREA.

Login

WARNING [2] Undefined array key "type". Warning on line 439 in file /www/sellvictoriarealestatecom_458/public/wp-content/themes/crux/modules/realestate/inc/user-handler.php

Check your favorites list! You’ve seen them, you’ve saved them. Log into your account to view your favourite listings.