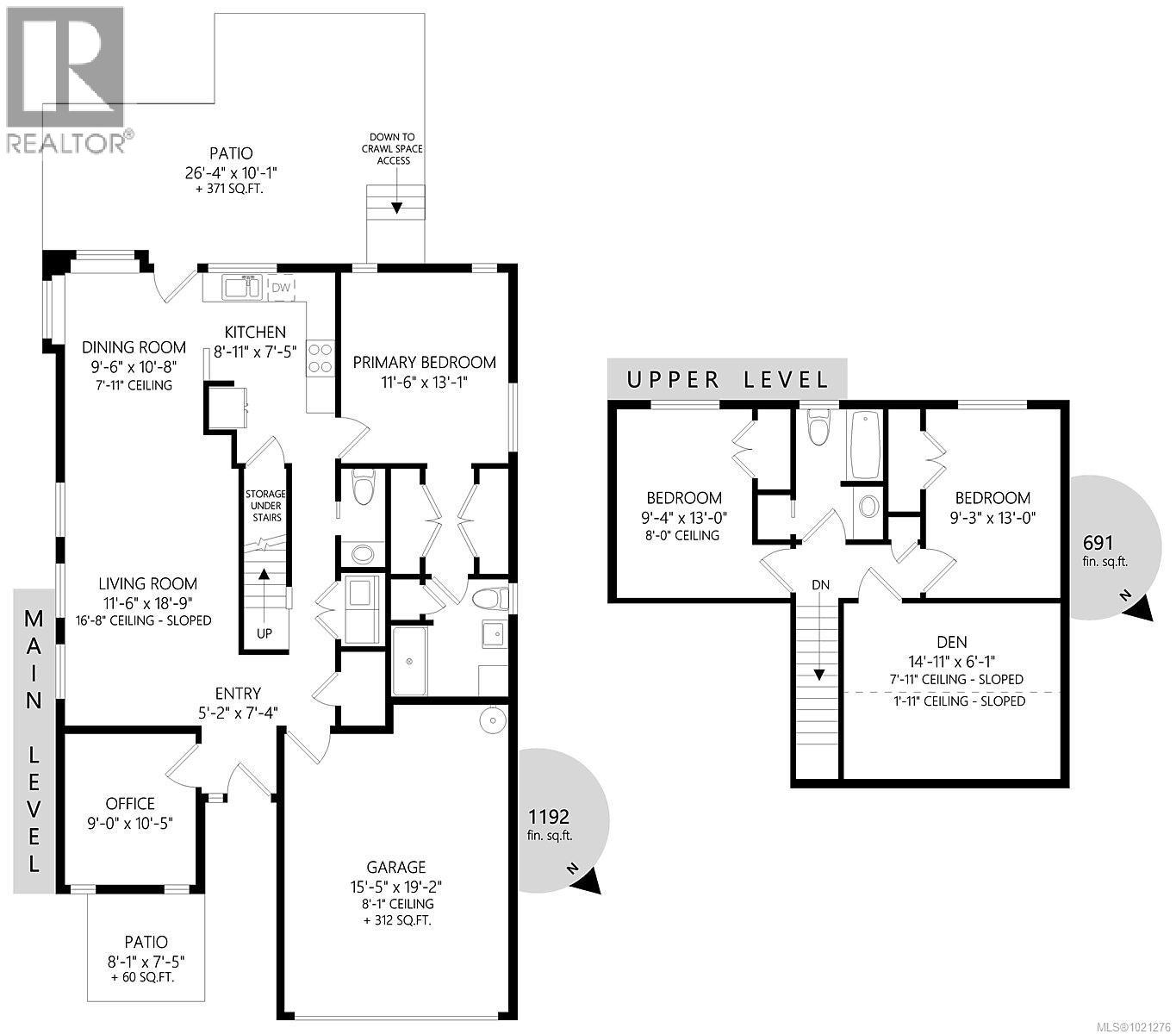
Quick possession is a possibility for this This Well Kept Builders Own Custom 2007 Year Built. Mins walk to the Ocean, 5 min walk to Sooke Town Core, Schools, Bus Routes, and All Amenities! 3+ Bed, 3 baths with Master on Ground Floor (set up like a Rancher) and 2 bedrooms, 4 pce Bathrooms, and a little Den area up – ideal for teenagers, Guests, or if you just need more space. Features Hardwood Floors and Vaulted Ceilings on main, nice Den -Office -Media room or potential 4th bedroom if added armor, 2pce bathroom on the main floor. Open living room flows into the smartly tiled dining room area with access to the fully fenced backyard with garden beds, storage area, and utility shed. Centrally located bright kitchen with huge pantry set up perfect for those who like to entertain soft closing cabinets. Good sized Master bedroom with His and Her Closets, a nice 3 pce Ensuite, and a huge easy access shower. This home has enormous amounts of storage space, on a huge heated crawlspace. Single Car Garage with a shop area. (id:24212)
Active
A 3365 Painter Road, Colwood
$774,900MLS® 1013913
4 Beds
2 Baths
1944 SqFt


