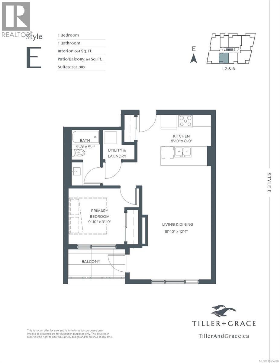
205 at Tiller & Grace offers a rare opportunity to secure a foothold in one of Cordova Bay’s most sought-after new buildings. West-facing and exceptionally crafted by GT Mann, this 1-bedroom home stands apart for its quality, livability, and thoughtful design. The spacious open-concept layout easily accommodates full-size furniture and is anchored by a generous kitchen island with bar seating. A premium appliance suite—WOLF induction cooktop and oven, panelled Fisher & Paykel fridge/freezer, and double drawer dishwashers—brings a level of finish rarely seen in one-bedroom condos. Custom millwork by Harbour City Kitchens features rift-cut white oak veneers and solid birch dovetail drawers, complementing the refined West Coast aesthetic. Enjoy year-round comfort with ducted air conditioning, and extend your living space outdoors on the fully covered west-facing balcony, perfect for soaking in the evening sun. The bathroom continues the home’s elevated design language, with refined oak detailing around the mirrors and vanity that brings the same sense of warmth and luxury found throughout the rest of the home. In a neighbourhood where 1-bedroom offerings are truly limited, this is an exceptional chance to own in Cordova Bay’s newest premium address-a beautifully built home ideal for an individual or couple seeking quality, comfort, and long-term value in a high-end community. (id:24212)
Active
112 4529 West Saanich Road, Saanich
$594,999MLS® 1025768
2 Beds
1 Baths
889 SqFt


