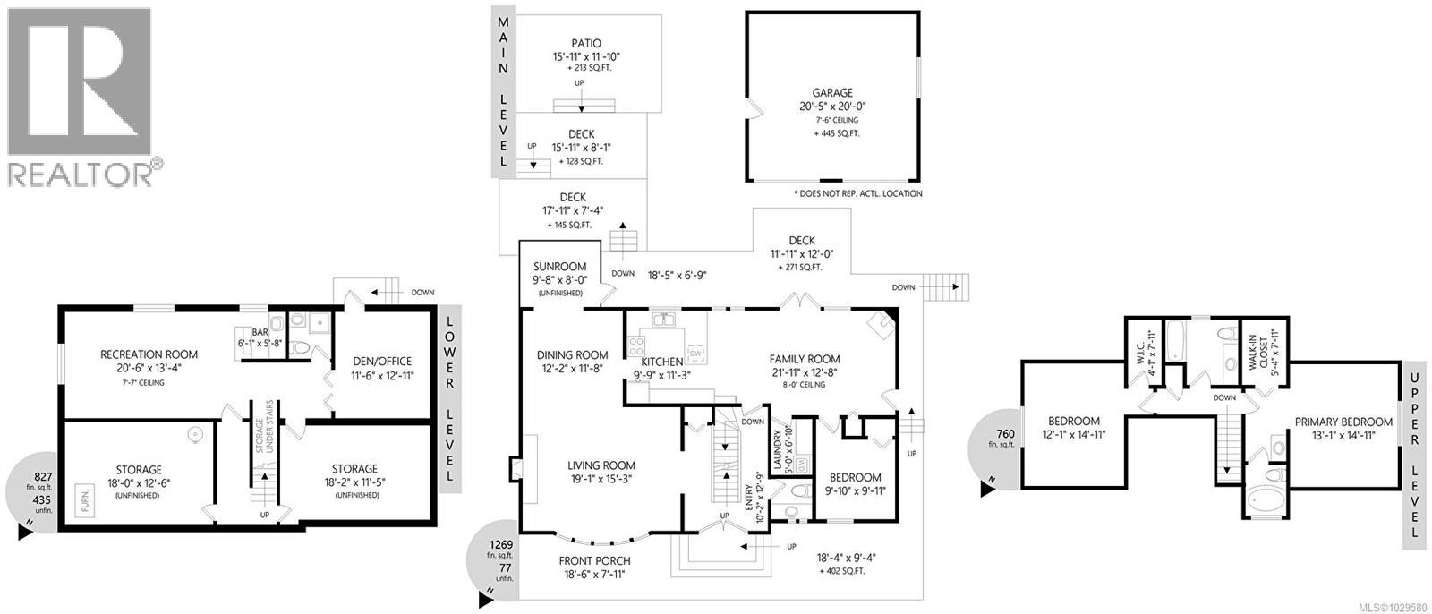
Located in the highly sought-after Cadboro Bay area, this spacious 3,000 sq ft family home offers an ideal layout on a stunning 11,000 sq ft lot surrounded by mature trees, lush gardens, and beautiful landscape both front and back. Main level has a bedroom, bright kitchen, living and dining areas, two piece bath and laundry. A newer glass sunroom provides the perfect space to enjoy morning coffee or unwind in the evening while over looking the sun filled back yard with full southern exposure. Upstairs offers three generous bedrooms, two with walk in closets. The primary suite includes a full bathroom with soaker tub, plus additional full bath for the kiddos! The lower level presents excellent potential for a suite with a large family room with bar, full bathroom and separate entrance plus loads of storage! Just minutes to Caddy Bay beach, Gyro park, cafe, pub, grocery store!. Surrounded by excellent schools, a vibrant community and an excellent lifestyle!! (id:24212)
Active
4007 Hollyridge Place, Saanich
$1,449,900MLS® 1032101
4 Beds
3 Baths
3104 SqFt


