Login   Sign Up
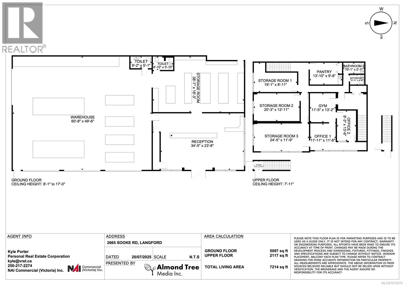
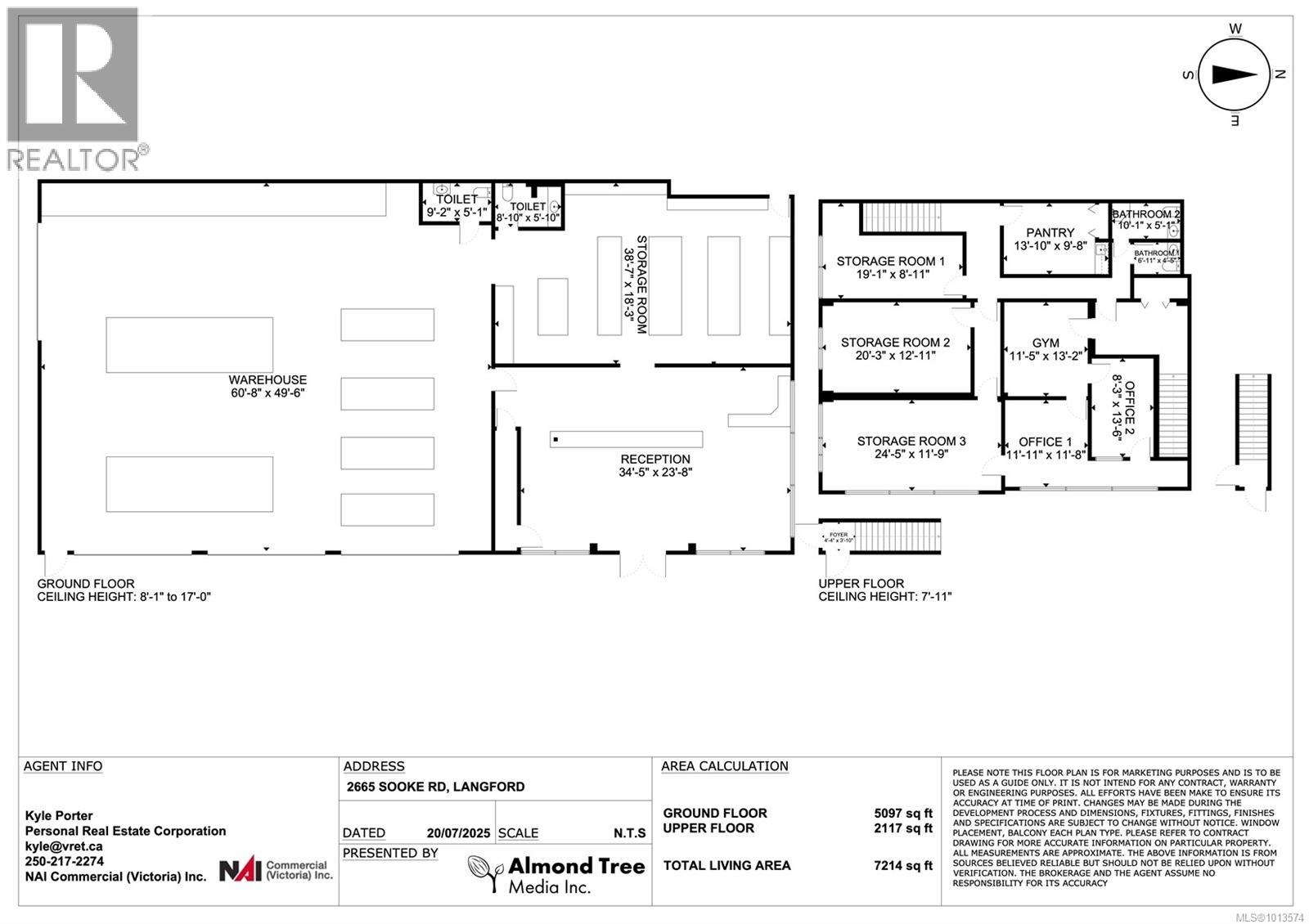
Fuse v5FOR SALE: NAi Commercial is pleased to present 2665 Sooke Rd. A 20,756 sq’ flat, high-visibility commercial property with 7,200 sq’ building. Perfect for an owner occupier, investor, or as a future redevelopment site. 5,100 sq’ on the ground floor with reception, offices, washrooms, storage, including over 3,000sq’ warehouse with 17’ ceilings and 4 loading bays. Upper level offers 2,100 sq’ of offices, kitchen/staff room, and storage. Versatile CS1 zoning permits a wide range of industrial, retail, service, and office uses. Secure gated yard with ample room for vehicles or equipment. Generous on-site parking and prime exposure on Sooke Rd with over 7000 cars driving by per day. Langford’s new OCP identifies this as ''Corridor.'' A key growth area supporting up to 6-storey mixed-use, positioning the property for strong redevelopment potential. Vacant possession available. Call for more information or to book a showing. (id:24212)
Full Address:
2665 Sooke Road, Langford, British Columbia
Price:
$ 3,600,000
MLS Number:
1013574
List Date:
September 19th, 2025
Neighbourhood:
Glen Lake
Building Size:
7214 sq.ft.
Lot Size:
20473 ac
Year Built:
1981
Taxes:
$ 32,260
Ownership Type:
Freehold

Property Specifications

Interior Features

Building Size:
7214 sq.ft.
Zoning:
Unknown
Garage Spaces:
10

Building Features

Floors

Lot Size:
20473 ac
Lot Features:
Central location, Level lot, Corner Site, Partially cleared, Other

Land

Neighbourhood Features

Ratings

Commercial Info

Location

Mortgage Calculator

powered by Ratehub.ca

Neighbourhood Details

Agent: Kyle PorterBrokerage: NAI Commercial (Victoria) Inc. Phone: 250-217-2274

The trademarks MLS®, Multiple Listing Service® and the associated logos are owned by The Canadian Real Estate Association (CREA) and identify the quality of services provided by real estate professionals who are members of CREA” MLS®, REALTOR®, and the associated logos are trademarks of The Canadian Real Estate Association. This website is operated by a brokerage or salesperson who is a member of The Canadian Real Estate Association. The information contained on this site is based in whole or in part on information that is provided by members of The Canadian Real Estate Association, who are responsible for its accuracy. CREA reproduces and distributes this information as a service for its members and assumes no responsibility for its accuracy The listing content on this website is protected by copyright and other laws, and is intended solely for the private, non-commercial use by individuals. Any other reproduction, distribution or use of the content, in whole or in part, is specifically forbidden. The prohibited uses include commercial use, “screen scraping”, “database scraping”, and any other activity intended to collect, store, reorganize or manipulate data on the pages produced by or displayed on this website.

Multiple Listing Service (MLS) trademark® The MLS® mark and associated logos identify professional services rendered by REALTOR® members of CREA to effect the purchase, sale and lease of real estate as part of a cooperative selling system. ©2017 The Canadian Real Estate Association. All rights reserved. The trademarks REALTOR®, REALTORS® and the REALTOR® logo are controlled by CREA and identify real estate professionals who are members of CREA.

Similar Listings

There are currently no related listings.

Login

WARNING [2] Undefined array key "type". Warning on line 439 in file /www/sellvictoriarealestatecom_458/public/wp-content/themes/crux/modules/realestate/inc/user-handler.php

Check your favorites list! You’ve seen them, you’ve saved them. Log into your account to view your favourite listings.