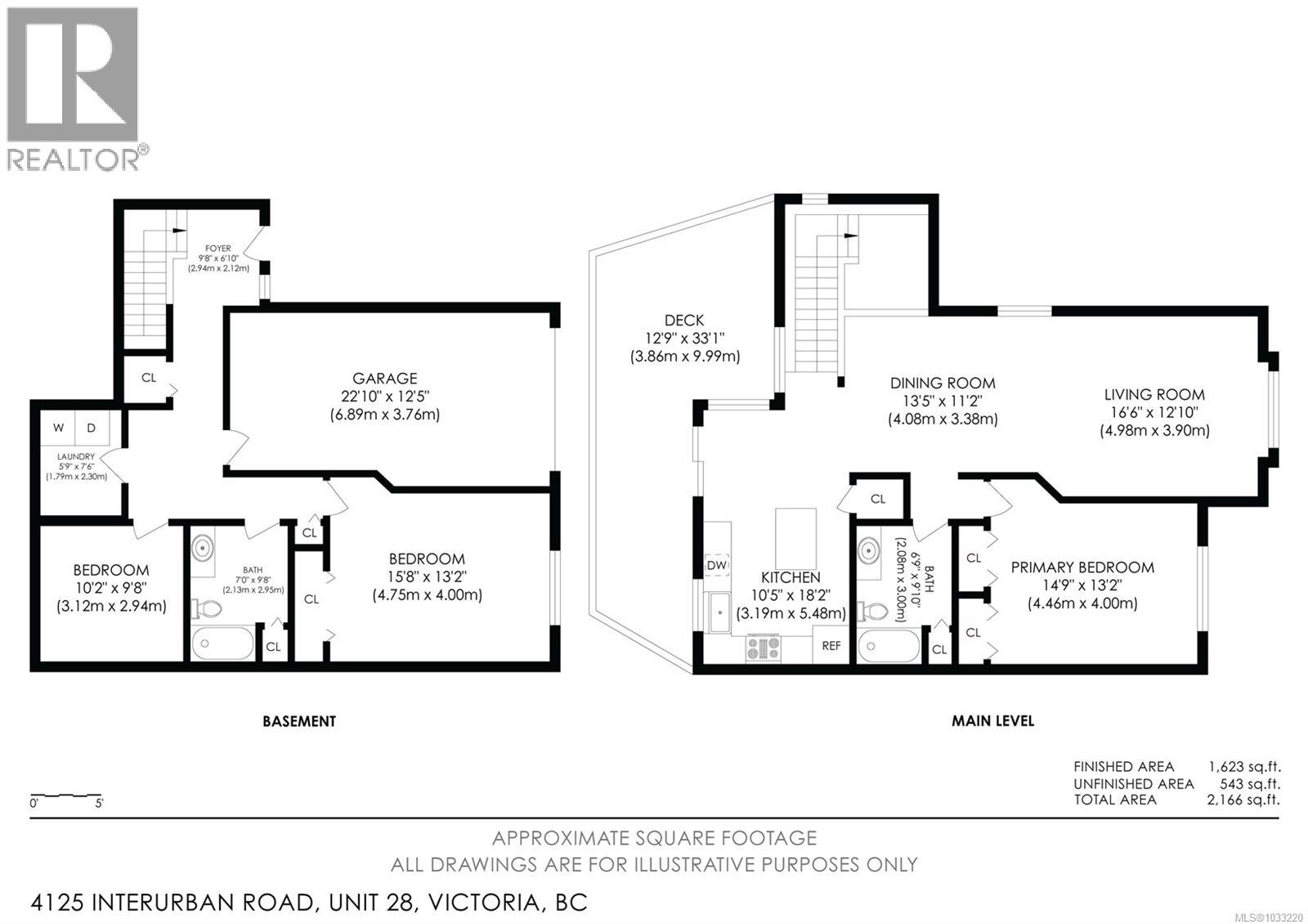
Spacious End Unit 2 Bed + Den Townhome in desirable Oak Glen Estates. This beautifully maintained town offers a flexible floor plan with possible primary bedroom with a full bath on each level. New flooring in the vaulted entry, large updated bedrooms and bathrooms with lots of storage, hardwood floors throughout kitchen/living/dinning room, an office/flex space and laundry room. The large kitchen with center island, pantry and stainless steel appliances overlooks the fenced patio with retractable powered awing backing on to common parkland. Private front entry with perennial gardens, oversized garage with storage and additional dedicated parking space. This pet friendly development offers a clubhouse with games room, library, guest suite, and a proactive strata. Such a special place to call home surrounded by by nature, views of Christmas Hill yet close to shopping, amenities and schools. (id:24212)
Active
5 3903 Douglas Street, Saanich
$760,000MLS® 1025059
3 Beds
2 Baths
1406 SqFt


